3 pièces avec Terrasse vue mer

Description

MARINAS DEAUVILLE – Très beau duplex de 3 pièces idéal pour des week-ends en famille ou entre amis et de l’investissement locatif. Il dispose d’une pièce à vivre avec une terrasse donnant sur la plage de DEAUVILLE, 2 chambres avec vue sur la Mer coté TROUVILLE.

Carte pro. CPI14022017000020121
AC ADC 1402 2022 000 000 098

336 000 €

Réf. : 1539-ABI

Agence mandataire

Détails du bien

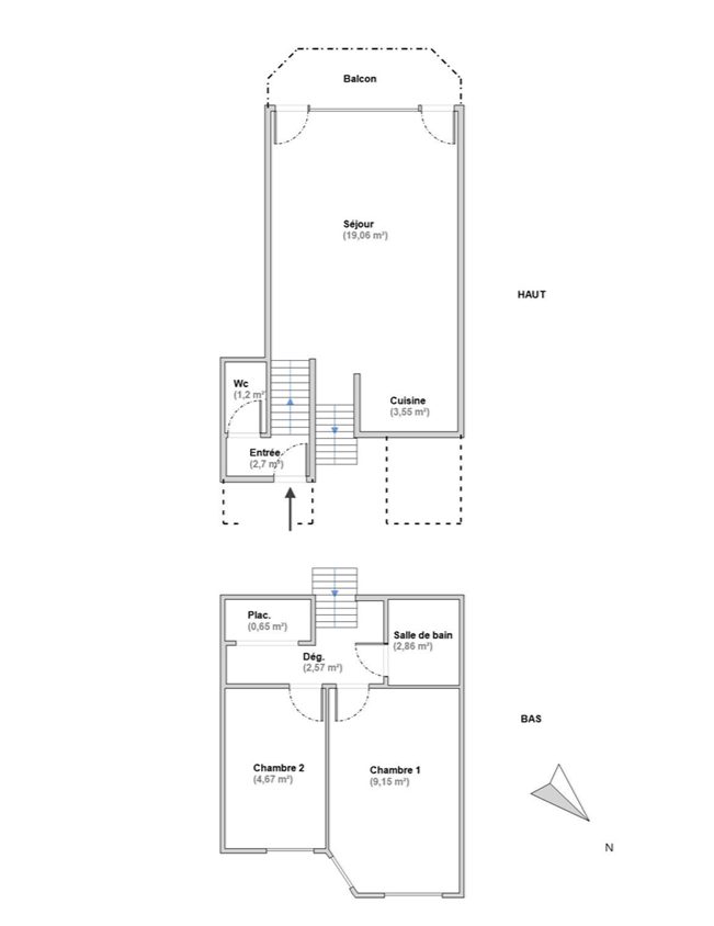
Détails des pièces

Pièce
Surface
Étage
Entrée
2.7m²
3ème
Séjour
19.06m²
3ème
Cuisine
3.55m²
3ème
Dégagement avec placard
3.22m²
3ème
Chambre
9.15m²
3ème
Chambre cabine
4.67m²
3ème
Salle de bain
2.86m²
3ème
WC
1.2m²
3ème

Caractéristiques du bien

Présentation générale du bien

Ville : Deauville

Code postal : 14800

Année de construction : 1973

Étage : 3

Surfaces du bien

Surface : 46.41m²

Balcon : 6 m²

Mentions légales

Honoraires à la charge du vendeur. Dans une copropriété de 34 lots. Quote-part moyenne du budget prévisionnel 2 952 €/an. Aucune procédure n’est en cours. Classe énergie F, Classe climat C Logement à consommation énergétique excessive. Montant estimé des dépenses annuelles d’énergie pour un usage standard : entre 1460.00 € et 2030.00 € sur les années 2021, 2022 et 2023 (abonnements compris). Les informations sur les risques auxquels ce bien est exposé sont disponibles sur le site Géorisques : georisques.gouv.fr.

Diagnostics énergétiques

Diagnostic de performance énergétique
DPE vierge Consommations non exploitables
Non soumis au diagnostic
* Dont émissions de gaz à effet de serre
GES vierge Consommations non exploitables

Calculer mon financement

cliquez ici

Une question sur le financement ?

Pour plus de précisions sur
votre financement

L’agence Aurélie BONNET Immobilier est
à votre disposition

Ce bien vous intéresse ?

Vous souhaitez plus d’information ?
N’attendez plus !

Aurélie BONNET - Trouville Sur Mer

Aurélie BONNET Immobilier

3 pièces avec Terrasse vue mer

336 000€

Réf. : 1539-ABI

Contacter l'agence

Aurélie BONNET Immobilier
Résumé de la politique de confidentialité

Ce site utilise des cookies afin que nous puissions vous fournir la meilleure expérience utilisateur possible. Les informations sur les cookies sont stockées dans votre navigateur et remplissent des fonctions telles que vous reconnaître lorsque vous revenez sur notre site Web et aider notre équipe à comprendre les sections du site que vous trouvez les plus intéressantes et utiles.