Spacieux 3 PP au coeur de TROUVILLE

Description

TROUVILLE CENTRE – Au 3ème et dernier étage d’une petite copropriété située au cœur du quartier Bonsecours, à quelques pas de la plage et du marché aux poissons, charmant 3 pièces en duplex de 33m² en carrez et 48m² au sol.. Il dispose d’une entrée desservant un séjour avec balcon ( à rénover pour en profiter ) bénéficiant d’une belle vue sur les toits, une cuisine indépendante, 2 chambres dont l’une sous combles, une salle d’eau avec WC. La double exposition et la jolie vue dégagée procurent une belle luminosité. La plage et les commerces sont à quelques pas


241 500 €

Réf. : 1558-ABI

Agence mandataire

Détails du bien

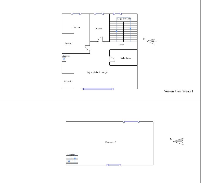
Détails des pièces

Pièce
Surface
Étage
Escalier (surface au sol)
2.1m²
3ème
Entrée
3.22m²
3ème
Cuisine
3.05m²
3ème
Séjour
13.5m²
3ème
Chambre avec placard
11.03m²
3ème
Salle d'eau avec wc
3.05m²
3ème
Escalier 2 (surface au sol)
1.4m²
3ème
Balcon (surface au sol)
1.5m²
3ème
Chambre sous comble
11m²
4ème

Caractéristiques du bien

Présentation générale du bien

Ville : Trouville-sur-Mer

Code postal : 14360

Année de construction : 1940

Étage : 3

Surfaces du bien

Surface : 48.00m²

Mentions légales

Honoraires à la charge du vendeur. Dans une copropriété de 10 lots. Quote-part moyenne du budget prévisionnel 480 €/an. Aucune procédure n’est en cours. Logement à consommation énergétique excessive : Classe énergie F, Classe climat F Montant estimé des dépenses annuelles d’énergie pour un usage standard : entre 1980.00 € et 2730.00 € sur les années 2021, 2022 et 2023 (abonnements compris). Les informations sur les risques auxquels ce bien est exposé sont disponibles sur le site Géorisques : georisques.gouv.fr.

Diagnostics énergétiques

Diagnostic de performance énergétique
DPE vierge Consommations non exploitables
Non soumis au diagnostic
* Dont émissions de gaz à effet de serre
GES vierge Consommations non exploitables

Calculer mon financement

cliquez ici

Une question sur le financement ?

Pour plus de précisions sur
votre financement

L’agence Aurélie BONNET Immobilier est
à votre disposition

Ce bien vous intéresse ?

Vous souhaitez plus d’information ?
N’attendez plus !

Aurélie BONNET - Trouville Sur Mer

Aurélie BONNET Immobilier

Spacieux 3 PP au coeur de TROUVILLE

241 500€

Réf. : 1558-ABI

Contacter l'agence

Aurélie BONNET Immobilier
Résumé de la politique de confidentialité

Ce site utilise des cookies afin que nous puissions vous fournir la meilleure expérience utilisateur possible. Les informations sur les cookies sont stockées dans votre navigateur et remplissent des fonctions telles que vous reconnaître lorsque vous revenez sur notre site Web et aider notre équipe à comprendre les sections du site que vous trouvez les plus intéressantes et utiles.