2 PP en Duplex avec terrasse et parking

Description

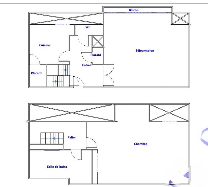
Sous compromis : DEAUVILLE CENTRE – Au dernier étage d’une résidence de standing, idéalement située dans une rue calme, à quelques mètres de la Place Morny, agréable et spacieux 2 pièces en duplex. Il dispose d’une entrée avec rangements, d’un séjour avec terrasse donnant sur un jardin, cuisine aménagée, à l’étage : une vaste chambre, salle de bains avec WC et rangements. Dispose d’une place de parking en sous sol. Prévoir rénovation intérieur.

Photos non contractuelles, générées par une IA

420 000 €

Réf. : 1477-ABI

Agence mandataire

Détails du bien

Détails des pièces

Pièce
Surface
Étage
entrée avec placards
5.43m²
3ème
séjour
21.76m²
3ème
cuisine
5.2m²
3ème
WC
1.68m²
3ème
chambre avec placard
20.3m²
3ème
salle de bains avec WC
6.98m²
3ème
pallier
2.54m²
3ème

Caractéristiques du bien

Présentation générale du bien

Ville : Deauville

Code postal : 14800

Année de construction : 1990

Étage : 3

Surfaces du bien

Surface : 54.05m²

Terrasse : 6 m²

Mentions légales

Honoraires inclus de 5% TTC à la charge de l’acquéreur. Prix hors honoraires 400 000 €. Dans une copropriété de 52 lots. Quote-part moyenne du budget prévisionnel 1 785 €/an. Aucune procédure n’est en cours. Classe énergie D, Classe climat B Montant estimé des dépenses annuelles d’énergie pour un usage standard : entre 1000.00 € et 1410.00 € sur les années 2021, 2022 et 2023 (abonnements compris). Les informations sur les risques auxquels ce bien est exposé sont disponibles sur le site Géorisques : georisques.gouv.fr.

Diagnostics énergétiques

Diagnostic de performance énergétique
DPE vierge Consommations non exploitables
Non soumis au diagnostic
* Dont émissions de gaz à effet de serre
GES vierge Consommations non exploitables

Calculer mon financement

cliquez ici

Une question sur le financement ?

Pour plus de précisions sur
votre financement

L’agence Aurélie BONNET Immobilier est
à votre disposition

Ce bien vous intéresse ?

Vous souhaitez plus d’information ?
N’attendez plus !

Aurélie BONNET - Trouville Sur Mer

Aurélie BONNET Immobilier

2 PP en Duplex avec terrasse et parking

420 000€

Réf. : 1477-ABI

Contacter l'agence

Aurélie BONNET Immobilier
Résumé de la politique de confidentialité

Ce site utilise des cookies afin que nous puissions vous fournir la meilleure expérience utilisateur possible. Les informations sur les cookies sont stockées dans votre navigateur et remplissent des fonctions telles que vous reconnaître lorsque vous revenez sur notre site Web et aider notre équipe à comprendre les sections du site que vous trouvez les plus intéressantes et utiles.