Agréable 3PP avec balcon et parking

Description


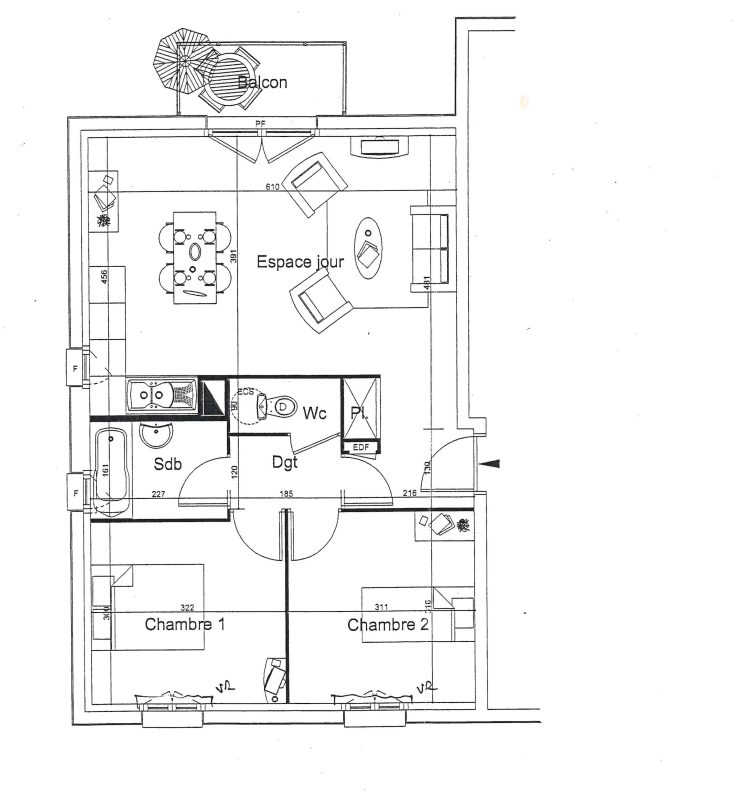
TROUVILLE-SUR-MER – A seulement 450 mètres du pont des Belges, dans une résidence récente et sécurisée, agréable 3 pièces parfaitement agencé. Il dispose d’une entrée avec placard, d’une confortable pièce à vivre avec balcon, 2 chambres dont l’une avec placard, salle de bains, wc séparé. Les plus : un grand box en sous-sol et une résidence avec ascenseur.

Vous apprécierez le balcon, la proximité au centre ville à pied et l’environnement calme.


Carte pro. CPI14022017000020121
AC ADC 1402 2022 000 000 098

358 000 €

Réf. : 1273-ABI

Agence mandataire

Détails du bien

Détails des pièces

Pièce
Surface
Étage
Entrée avec placard
1.60m²
1er
Séjour cuisine
27.74m²
1er
Dégagement
2.22m²
1er
Chambre 1
9.80m²
1er
Chambre 2
9.83m²
1er
Salle de bain
3.65m²
1er
WC
1.66m²
1er

Caractéristiques du bien

Présentation générale du bien

Ville : Trouville-sur-Mer

Code postal : 14360

Année de construction : 2004

Étage : 1

Surfaces du bien

Surface : 56.74m²

Balcon : 3 m²

Mentions légales

Dans une copropriété de 143 lots. Quote-part moyenne du budget prévisionnel 1 199 €/an. Aucune procédure n’est en cours. Classe énergie D, Classe climat B Montant estimé des dépenses annuelles d’énergie pour un usage standard : entre 800.00 € et 1000.00 € sur les années 2021, 2022 et 2023 (abonnements compris). Les informations sur les risques auxquels ce bien est exposé sont disponibles sur le site Géorisques : georisques.gouv.fr.

Diagnostics énergétiques

Diagnostic de performance énergétique
DPE vierge Consommations non exploitables
Non soumis au diagnostic
* Dont émissions de gaz à effet de serre
GES vierge Consommations non exploitables

Calculer mon financement

cliquez ici

Une question sur le financement ?

Pour plus de précisions sur
votre financement

L’agence Aurélie BONNET Immobilier est
à votre disposition

Ce bien vous intéresse ?

Vous souhaitez plus d’information ?
N’attendez plus !

Aurélie BONNET - Trouville Sur Mer

Aurélie BONNET Immobilier

Agréable 3PP avec balcon et parking

358 000€

Réf. : 1273-ABI

Contacter l'agence

Aurélie BONNET Immobilier
Résumé de la politique de confidentialité

Ce site utilise des cookies afin que nous puissions vous fournir la meilleure expérience utilisateur possible. Les informations sur les cookies sont stockées dans votre navigateur et remplissent des fonctions telles que vous reconnaître lorsque vous revenez sur notre site Web et aider notre équipe à comprendre les sections du site que vous trouvez les plus intéressantes et utiles.